Aktuelles
Projekte
Wohnen
Büro und Gewerbe
Kultur und Schule
Sporthallen
Gesundheit
Sanierung
Wettbewerbe
Büro
Karriere
Impressum
Datenschutzerklärung
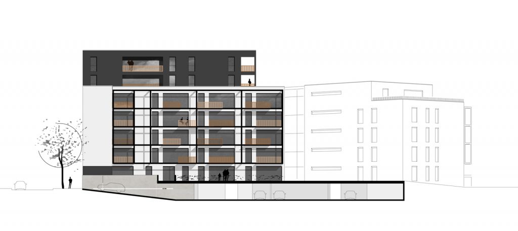
Mehrfachbeauftragung Wohnbebauung Bach- und Wichernstrasse l Ulm
Veröffentlichung
2014
Mitarbeiter
Julia Nebelung | Vasiliki Boka
Neubau von 7 Reihenhäusern l UIm Wiblingen
Mehrfachbeauftragung Wohngebäude Zeppelingring 47 l Biberach