Aktuelles
Projekte
Wohnen
Büro und Gewerbe
Kultur und Schule
Sporthallen
Gesundheit
Sanierung
Wettbewerbe
Büro
Karriere
Impressum
Datenschutzerklärung
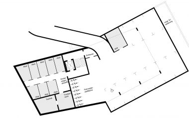
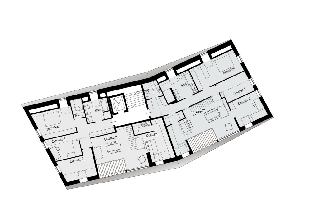
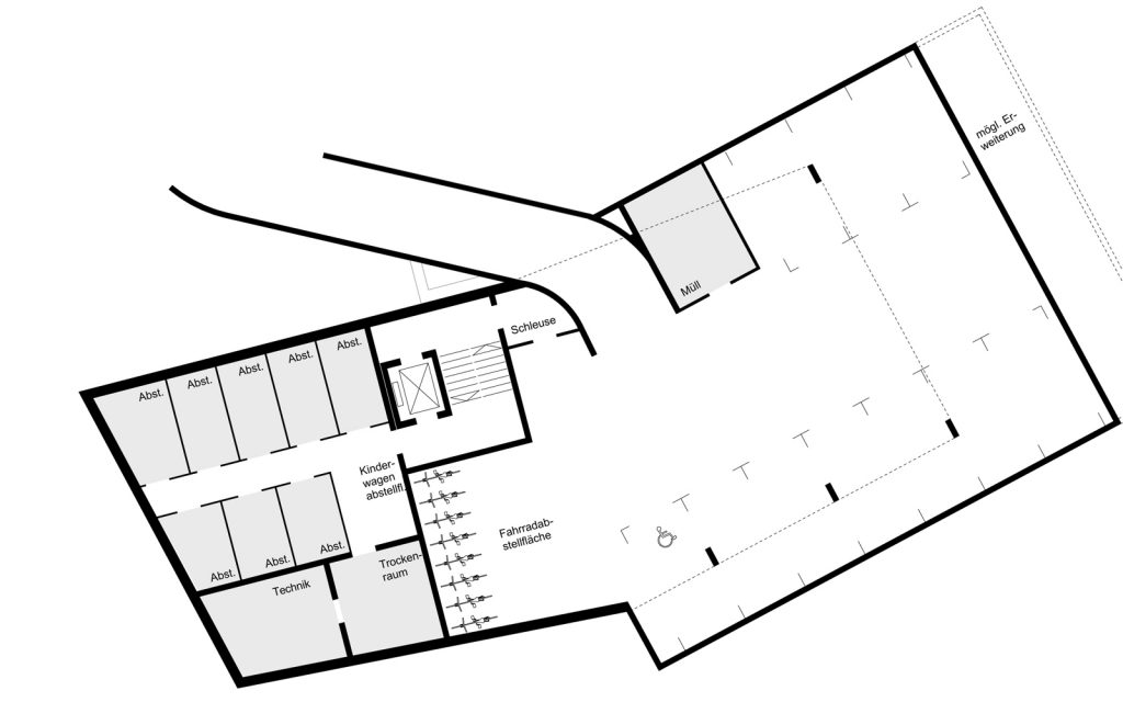
Mehrfachbeauftragung Wohngebäude Zeppelingring 47 l Biberach
Objektadresse
Zeppelinring 47 l 88400 Biberach Riss
Auszeichnung
1. Preis Mehrfachbeauftragung
Veröffentlichung
2015
Mitarbeiter
Julia Nebelung
Mehrfachbeauftragung Wohnbebauung Bach- und Wichernstrasse l Ulm
Mehrfachbeauftragung Sporthalle Jugendbildungsstätte l Babenhausen