Aktuelles
Projekte
Wohnen
Büro und Gewerbe
Kultur und Schule
Sporthallen
Gesundheit
Sanierung
Wettbewerbe
Büro
Karriere
Impressum
Datenschutzerklärung
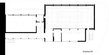
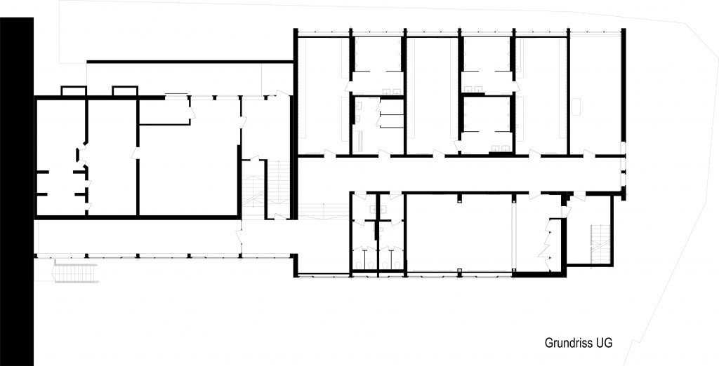
Sanierung Sporthalle Elly-Heuß-Realschule l Ulm-Weststadt
Bauherr
Stadt Ulm l Zentrales Gebäudemanagement
Objektadresse
Elisabethenstraße Ulm
Fertigstellung
2024
Kubatur
7.700 m³
Leistungsphasen
1-8
Mitarbeiter
Markus Stohrer | Mathias Schneider
Neubau Freizeiheim Ruhetal l Ulm