Aktuelles
Projekte
Wohnen
Büro und Gewerbe
Kultur und Schule
Sporthallen
Gesundheit
Sanierung
Wettbewerbe
Büro
Karriere
Impressum
Datenschutzerklärung
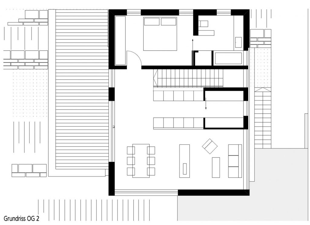
Neubau Wohnhaus Z l Bad Urach
Bauherr
privat
Objektadresse
Bad Urach
Fertigstellung
2009
Kubatur
870 m³
Leistungsphasen
1-4
Energet. Standard
KFW 60
Mitarbeiter
Julia Nebelung | Sabrina Knaus (Sauter)
Sanierung ev. Kirche l Holzkirch
Neubau Wohnhaus R l Ulm