Aktuelles
Projekte
Wohnen
Büro und Gewerbe
Kultur und Schule
Sporthallen
Gesundheit
Sanierung
Wettbewerbe
Büro
Karriere
Impressum
Datenschutzerklärung
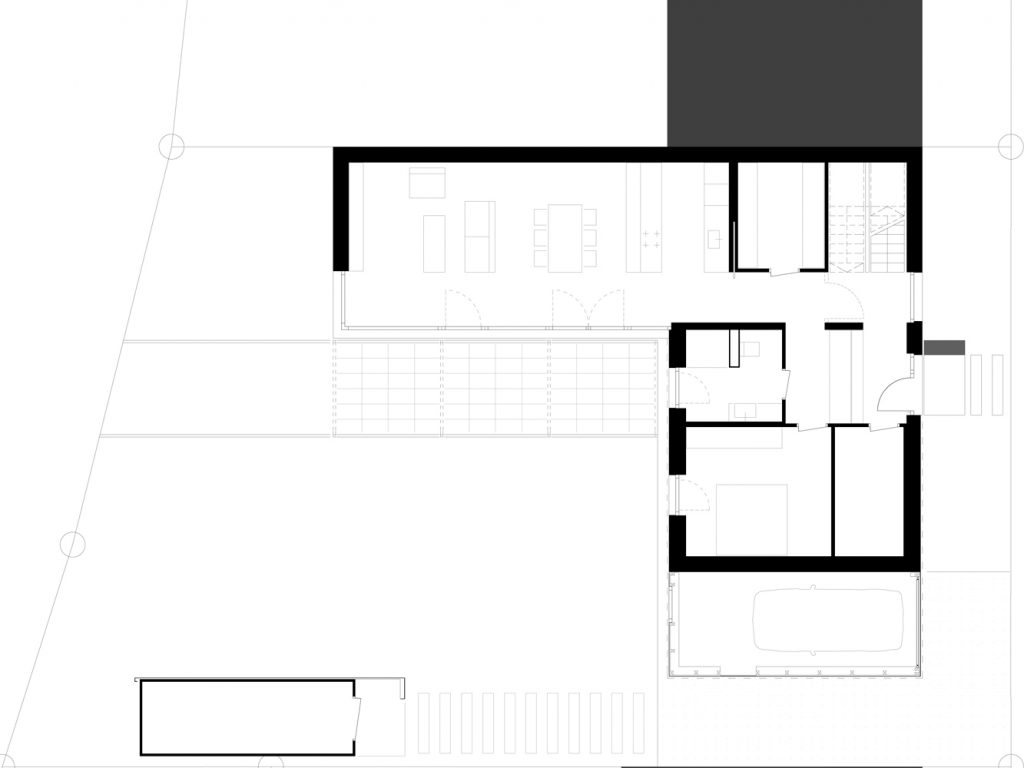
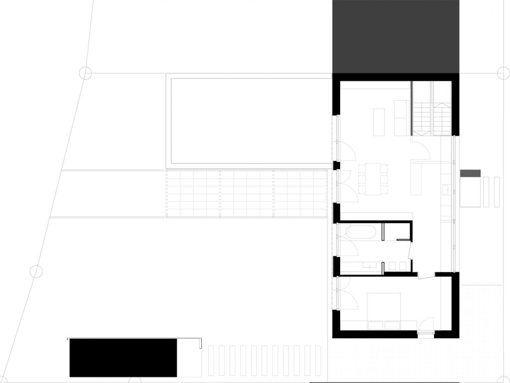
Neubau Wohnhaus M l Ulm-Wiblingen
Bauherr
privat
Objektadresse
89079 Ulm Wiblingen
Fertigstellung
2013
Kubatur
970 m³
Leistungsphasen
1-8
Energet. Standard
KFW 40
Veröffentlichung
Der Bauherr
Mitarbeiter
Julia Nebelung
Mehrfachbeauftragung Wohngebäude Virchowstrasse l Ulm
Um- und Neubau Stadtloft l Ulm