Aktuelles
Projekte
Wohnen
Büro und Gewerbe
Kultur und Schule
Sporthallen
Gesundheit
Sanierung
Wettbewerbe
Büro
Karriere
Impressum
Datenschutzerklärung
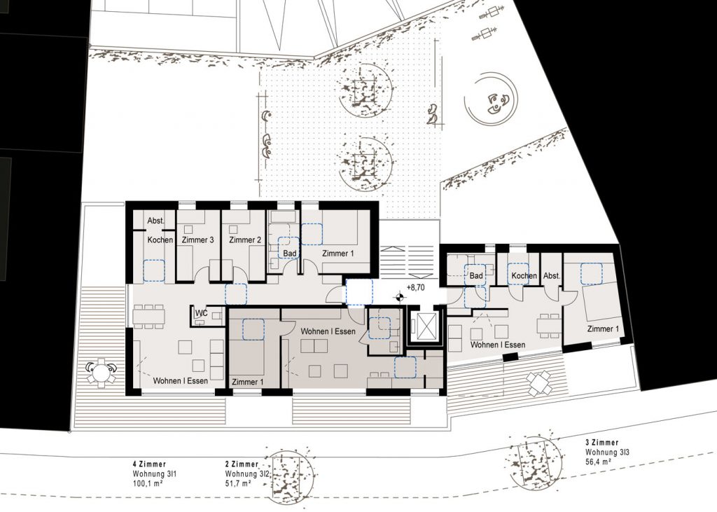
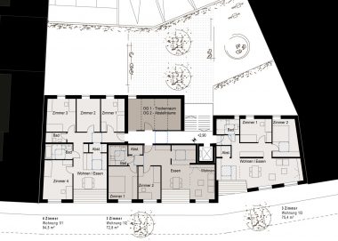
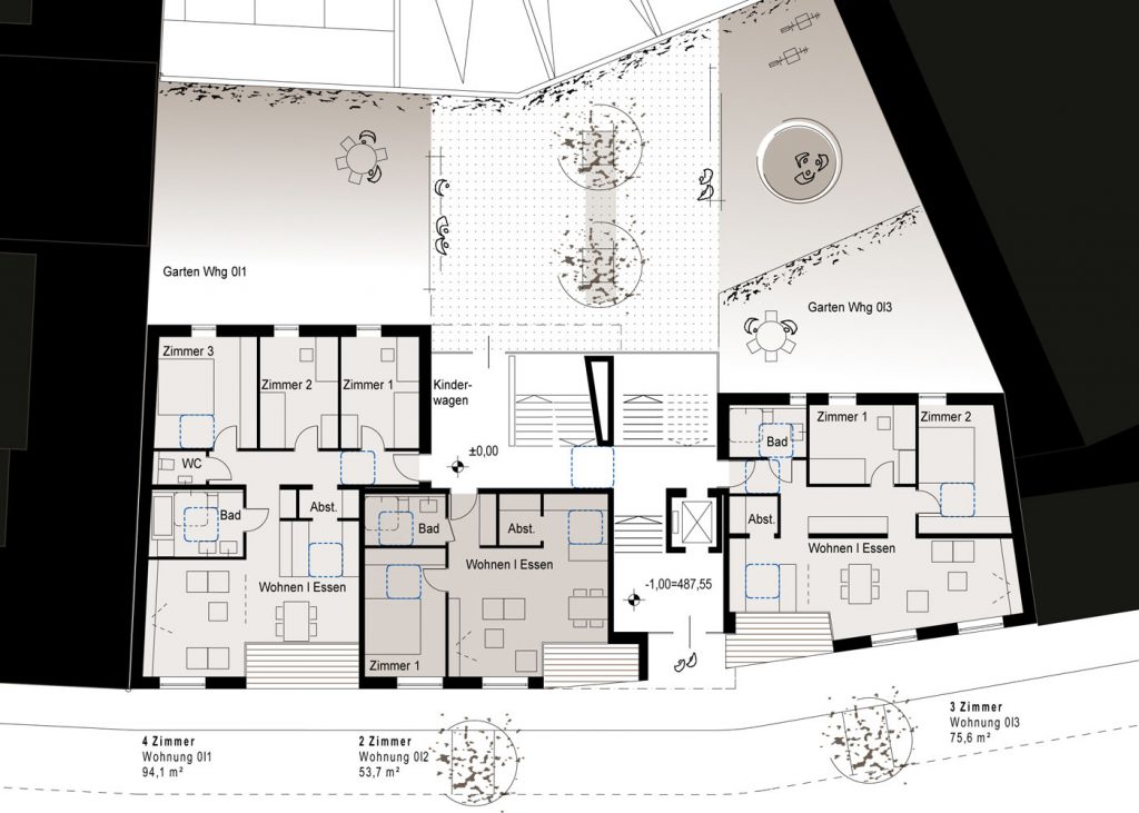
Mehrfachbeauftragung Wohnbau Sedanstrasse l Ulm
Veröffentlichung
2012
Mitarbeiter
Julia Nebelung
Wettbewerb Kita l Beimerstetten
Mehrfachbeauftragung Mehrgenerationenwohnhaus mit Kindergarten l Ulm