Aktuelles
Projekte
Wohnen
Büro und Gewerbe
Kultur und Schule
Sporthallen
Gesundheit
Sanierung
Wettbewerbe
Büro
Karriere
Impressum
Datenschutzerklärung
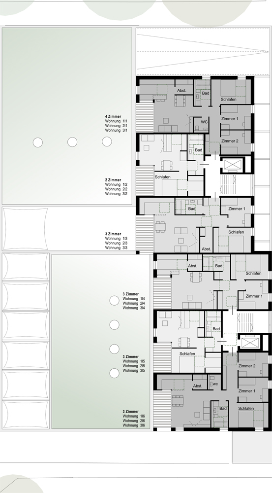
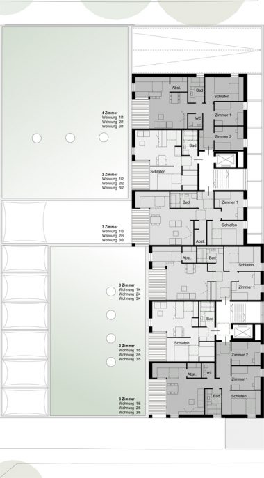
Mehrfachbeauftragung Wiblinger Hart l Ulm Wiblingen
Veröffentlichung
2017
Mitarbeiter
Julia Nebelung
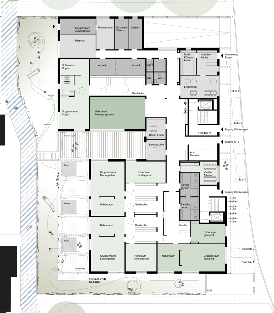
Neubau Pavillon für die Familienbildungsstätte l Ulm
Mehrfachbeauftragung Söflinger Str. l Ulm