Aktuelles
Projekte
Wohnen
Büro und Gewerbe
Kultur und Schule
Sporthallen
Gesundheit
Sanierung
Wettbewerbe
Büro
Karriere
Impressum
Datenschutzerklärung
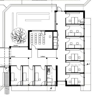
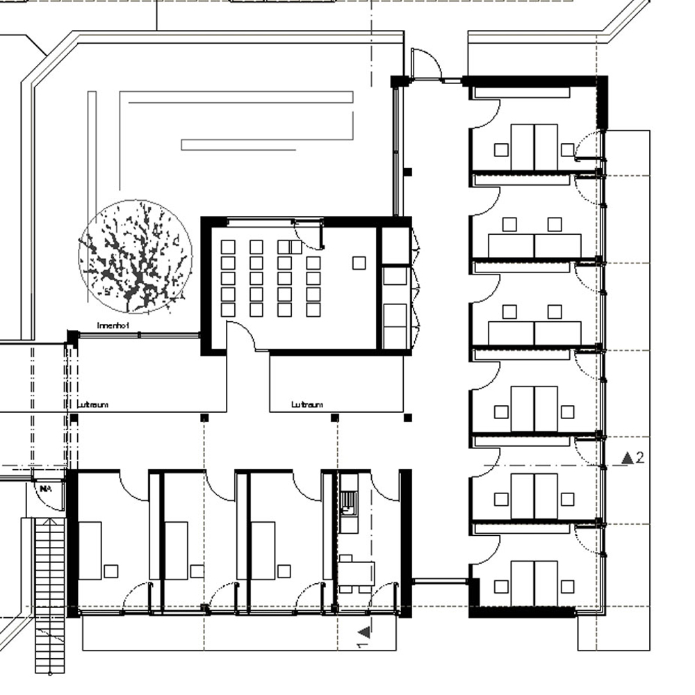
Anbau Uniklinik l Ulm-Eselsberg
Bauherr
Universitätsklinikum Ulm l Albert Einstein Allee 29 l 89081 Ulm
Objektadresse
Robert Koch Strasse l 89081 Ulm
Fertigstellung
2007
Kubatur
2.750 m³
Leistungsphasen
1-4 l 6-8 mit Generalunternehmer
Mitarbeiter
Julia Nebelung
Sanierung Finanzamt l Ulm